BRILLANT
Blockhäuser

Altlockwitz 41/
Ecke Dohnaerstraße
01257 Dresden

Telefon: 0174 / 5328651
Mobil: 0172 / 3512150

Email: info@blockhausdresden.de

Preis:


inklusive gesetzlicher Mehrwertsteuer
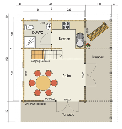
Wandstärke:
> 70 mm
Größe:
> 430 x 560 cm (B x T)

Tür + Fenster:
> Siehe Grundriss

Plus Ausstattung:
> Keine